Comfort and elegance on the beach
In this project we created an oasis of serenity and sophistication for an apartment building project, where materials that are very resistant to the marine environment are combined with a simple design that facilitates a unique experience for the users of the building. Designed to maximise the buildable area without compromising quality or comfort, this complex fuses modern aesthetics with functionality. Engineers and architects faced the challenge of optimizing every square centimeter, resulting in an efficient layout that offers ample living spaces and common areas for the enjoyment of its residents.
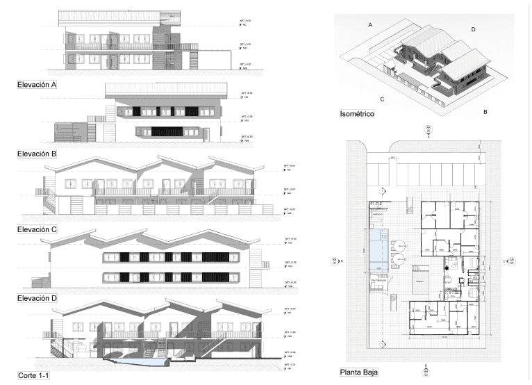
Project
Located in Playa Venao, the orientation of the complex was carefully planned to make the most of the hours of sunshine and the sea breeze, while protecting it from the adverse elements. The choice of solid materials that are resistant to beach environments ensures the durability and structural integrity of the building, providing residents with a sense of security and peace of mind.
But the most impressive thing about this project lies in the finishes that transport you to an environment with Balinese reminiscences. Every detail, from the wall coverings to the decorative elements inspired by tropical coastal architecture, creates an atmosphere of elegance and warmth that invites rest and relaxation.
We designed for our client a coastal paradise, where architectural design becomes a sensory experience. This isn't just an apartment building; It's a luxury retreat where your dreams of living by the sea come true.
Technical details
#VIRTUAL DESIGN
#BIM
#AUTOCAD
#MAGNELIS
#CONCRETE
#PANEL SANDWICH
#FIBERCEMENT
#POLISHED CONCRETE
#PORCELANATO
#STEEL FRAMING
#EIFS
#SOLAR PANELS
#ECO WATER TREATMENT
















